MJS Building & Development Commences New Project in Bridgehampton
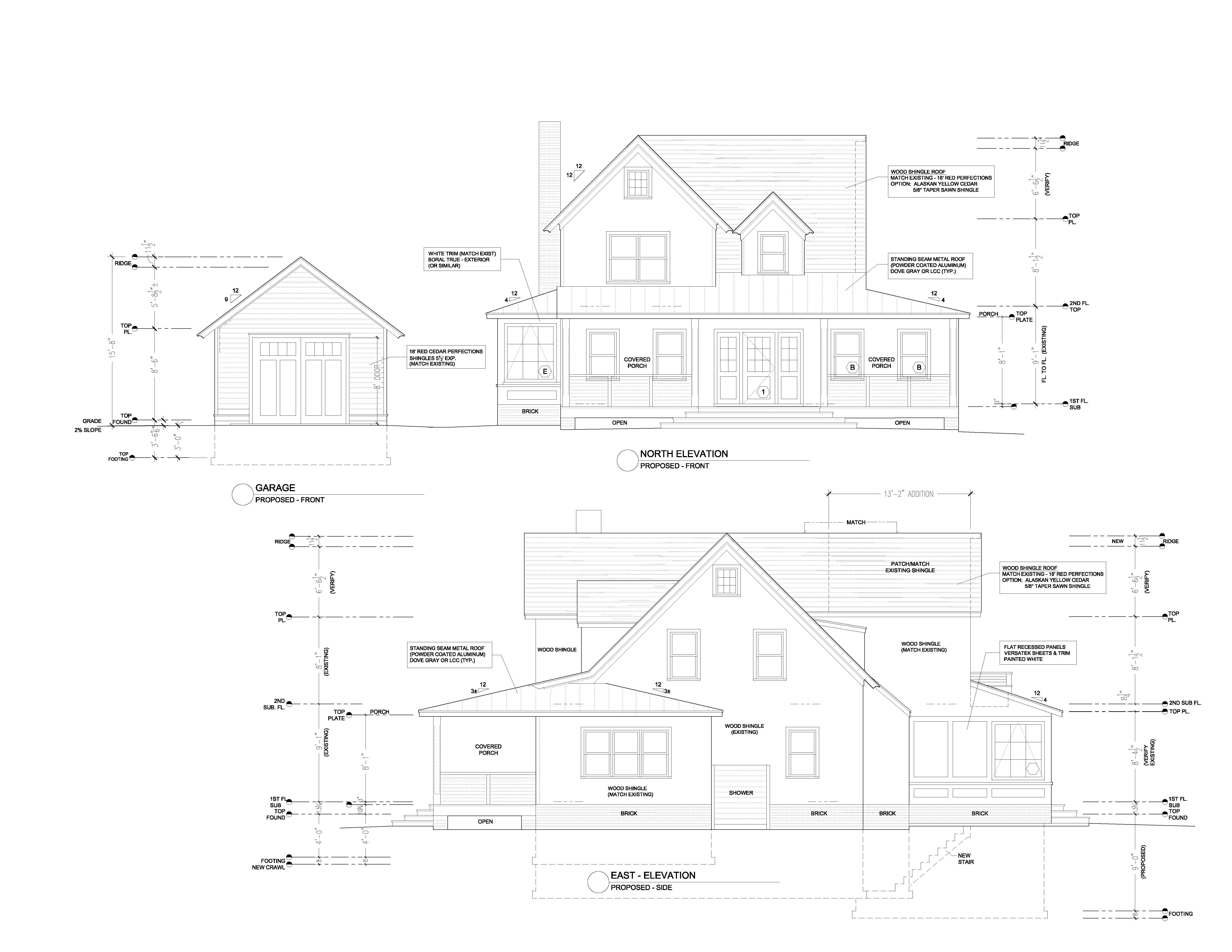
MJS Building & Development is excited to announce that our latest project in Bridgehampton, New York is now underway. The new construction project, designed by D&D Harvey, will bring traditional elegance to the Hamptons.
Watch this space for updates or follow any one of our social media channels for the latest project news.

Design Drawings
Architect: D&D Harvey

About MJS Building & Development
MJS is a full-service construction company building some of the Hamptons and Eastern Long Island's most admired homes and bespoke renovations.
Stay connected as we take you through the complete process.